[Trade Journal]
Publication: The Electrical Engineer
New York, NY, United States
vol. 24, no. 485, p. 149-151, col. 1-2
THE NEW CONDUIT RAILWAY WORK IN NEW YORK.
AFTER several months of delay, caused by legal complications, the Metropolitan Street Railway Company, of New York, is now actively engaged in converting the present horse roads on Eighth and Madison avenues into electric conduit roads.
![]() |
| Fig. 1 -- Section of New Electric Conduit Roads, New York. |
In planning the new work the engineers of the company have been guided largely by the experience gained in the operation of the Lenox avenue conduit road which is now in its second year.
Our engraving, Fig. 1, shows a section of the conduit. As will be noted, the entire depth of the yoke is only 2 feet 64 inches, so that but a very shallow excavation will be required, in marked contrast to the usual depth of a cable conduit. The yokes will be spaced 5 feet on centers, and the hand holes where the insulators are attached, at distances of 15 feet.
The conducting rail is a modified T-section, with the edges lapped over, so as to give additional stiffness to resist the pressure of the plow contacts.
![]() |
| Fig. 2 -- Insulator for New Conduit Roads in New York. |
The conducting rails are held in position by fork brackets, which are held firmly by porcelain insulators. Fig. 2 shows one of these insulators in part section. These differ somewhat in construction from those used on the Lenox avenue line. They are supported at two points and bolted to the slot rail and conductor rail. The insulator is enclosed in an outer inverted bell of cast iron; within this is cemented the glazed porcelain insulator, and inside of this is cemented the steel screw pin that supports the fork to which the conductor rail is attached. The insulator is 7-1/4 inches high over all and the conductor rail is 14 inches below the top of the slot rail.
![]() |
| Fig. 3 -- Man Hole and Cleaning Pits, New Conduit Road Construction, New York. |
The construction adopted at manholes and cleaning pits is shown in the illustration, Fig. 3. The manholes are 5 feet deep below the surface, with catch basins connected to the sewer. These are placed 150 feet apart on levels, but at more frequent intervals on grades. The pits are also employed for connecting the feeders to the conductor bars. It will be noted that the yokes of the conduit have a stiffening web cast on at the bottom, which is embedded in concrete; this enables a shallower construction of conduit to be employed.
![]() |
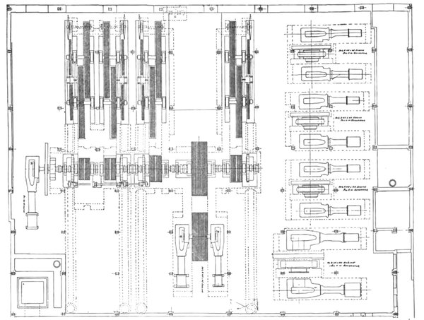
| Fig. 4 -- Arrangement of Generators in 25th Street Railway Power House, New York. |
![]() |
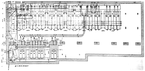
| Fig. 5 -- Boiler Arrangement in 25th Street Railway Power House, New York, |
![]() |
| Fig. 6 -- Section of Boiler House. |
In order to provide current for the new lines the company is installing two new electric power plants. One of these is situated in the present cable power house on East Twenty-fifth street, and is shown in plan in Fig. 4. Placed alongside the present cable drives there will be ranged four 800 k. w. G. E. generators, driven by cross-compound engines, built by Owing to the lack of space, one-half of the new boilers will be placed under the sidewalk, as shown in the sectional view, Fig. 6, and these will be provided with the Box automatic stokers. This station will supply current to all lines below Fifty-ninth street. Above this point current will be furnished from the 146th street station, which now supplies the Lenox avenue line. This station is now being extended to make room for the new power equipment.






