[Trade Journal]
Publication: The Journal of Electricity, Power and Gas
San Francisco, CA, United States
vol. 14, no. 1, p. 33-42, col. 1-2
The United Railroads of San Francisco.
EARLY in 1902 the Market Street Railway Company, the San Francisco and San Mateo Railway Company, the Sutter Street Railway Company and the Sutro Electric Railway Company were consolidated, and the combined company has taken the name of the United Railroads of San Francisco. Before the consolidation took place it had already become apparent to the Market Street Railway Company, which was the largest of the above-mentioned systems, that more power was needed in order to give the city of San Francisco a good street railway service. After the consolidation the need of a large central station became still more apparent, and the plans which had been made for the Market Street Railway Company were broadened so as to be adapted for the entire system.
At that time the United Railroads derived their power from the following sources:
1. From the Bryant Street power house, which has an equipment consisting of four 1400-horsepower engines, each being direct connected to two 400-kilowatt Siemens & Halske generators; two 600-horsepower engines, each belt connected to M. P. 200-kilowatt generator, and two 300-horsepower engines, each belt connected to a M. P. 200-kilowatt generator.
2. From the Carl Street power house, which has an equipment consisting of a 250-horsepower and a 500-horsepower engine, either one of which may drive a jack shaft, to which are belted four M. P. 90, one M. P. 100 and one M. P. 270 kilowatt generators.
3. From the Oak Street and Broderick Street power house, which contains a 750-horsepower engine, belt-connected to one M. P. 225, one M. P. 200, and two M. P. 90-kilowatt generators.
4. From the Sutro power house, which contains one direct-connected 400-kilowattand one direct-connected 200-kilowatt generator.
5. From a power house rented from the Pacific Power Company, having an output of about 600 kilowatts.
6. From the Independent Electric Light and Power Company, which furnishes about 1600 kilowatts.
It will at once become apparent that the operation of so many small plants is expensive. Besides more power is needed, as San Francisco is growing very rapidly. More cars are being added to the old lines, extensions are being made and new lines are being built.
| |||
| The North Beach Power Station of the United Railroads of San Francisco Just Before Completion |
Plans were, therefore, made for the new central power station and three substations, which will be hereafter fully described, and which are now partially finished. It is intended when the new plant is fully completed to close all the stations except the Bryant Street station. The city will then be divided into districts, which will be supplied with power in the following manner:
The main power station is located at North Beach. The alternating current is transmitted at 12,300 volts (1) to a substation at Turk Street and Fillmore Street, which supplies all lines north of Market Street with power; (2) to a substation at Geneva Avenue and San Jose Avenue, which supplies all lines south of Thirtieth Street to the cemeteries; (3) to a substation at Millbrae, which supplies the suburban line from the cemeteries to San Mateo. The direct current station at Bryant Avenue supplies all lines south of Market Street to Thirtieth Street.
![]() |
| Exterior Elevations of the North Beach Power House of the United Railroads |
The building for the main power station is located in that section of the city known as North Beach. It is on the southeast corner of Beach Street and Buchanan Street, and occupies only a portion of the two blocks owned by the company. On the east side of Buchanan Street the building occupies a space of 113 feet six inches, and on the south side of Beach Street 337 feet.
The Beach Street side of the building faces the San Francisco Bay, a short distance east of the Golden Gate. The site is particularly adapted for a power house, as condensing water is taken from the bay about 400 feet from the powerhouse. There is also a large wharf about two blocks distant, where fuel oil or coal can be landed. The entire building is on a beach sand and gravel foundation. It may be thought that, owing to the close proximity of Golden Gate, the wind storms from the Pacific Ocean might affect conditions, but such is not the case, as the building is well sheltered.
![]() |
| Sectional Ground Plan and Elevation of the North Beach Power House of the United Railroads |
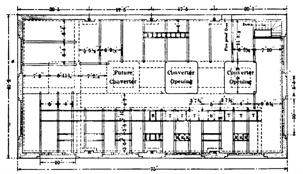
The building is one of the most modern of its kind, great care having been taken in the selection of material and mode of construction. The materials used in construction are concrete, brick, steel, iron and slate, thus making it thoroughly fireproof. All the foundations, including those of the engines and boilers, were put in by the company, and are made of the best material money could buy. The foundation for one engine alone is a solid block of concrete, sixty-three feet long, twenty-four feet wide and fifteen feet deep. The walls are built of brick and cement. The floors are of I-beam construction, arched with the Roebling system of fire-proofing. The roof trusses are steel, resting on granite caps. The roof is covered with the best quality of California slate. The chimney is of brick. It stands some distance from the main building, being connected to it by a flue ten feet wide and forty-feet high, in which provision has been made for forced draft, should it become necessary to use coal. The chimney is 152 feet high and fourteen feet eight inches inside diameter, and is lined about half-way up with firebrick, behind which an airspace has been left.
The engine room is forty-eight feet by 287 feet. The machine shop is forty eight feet by forty-five feet. The boiler room is fifty-eight feet six inches wide and 331 feet long. Both engine and boiler rooms are forty-three feet high from floor line to bot-tom of trusses. The building was constructed by contract, although the foundations were built by the railway company, under the supervision of H. H. Lynch, late superintendent of construction.
| |||
| Two Views of the Great Induced Draught Fans |
At present there are installed four batteries of Babcock & Wilcox boilers. The foundations are laid, however, so that four more batteries can be added in the future. The boilers are single deckers, and have a capacity of 2500 horsepower to the battery. They have been fitted up with oil burners, but provision has been made in the foundations for ash pits, should it become necessary to burn coal.
The fuel used is California crude petroleum. This oil comes from Bakersfield, Kern County. The supply of oil is stored in a main storage tank, situated on the corner of Laguna and North Point Streets, about 150 feet from the power house. This tank is twenty-seven feet high, eighty feet in diameter and has an approximate capacity of 1,500,000 gallons. It is built of seven-sixteenth-inch steel boiler plate, on a sand foundation. At the present time the oil is pumped directly from oil barges at the wharf to the main tank through a five-inch pipe, but later on eight-inch pipe lines will be laid through the city from the storage tanks of the Associated Oil Company, at Seventh and Berry On Streets and Bay and Montgomery Streets, to this main tank. On account of the steep grades this power house cannot be reached with the regular electric oil-tank car with which the company supplies its other powerhouses, but a route will probably be established in the future so that this may be accomplished. This would give the company four independent methods of supplying fuel oil to this power house.
| |||
| Construction Views of the Installation of Babcock & Wilcox Boilers |
The main storage tank is connected by independent five-inch pipes and Dow pumps to two auxiliary feed tanks. These tanks have a capacity of 20,000 gallons each. They are built of one-quarter-inch steel boiler plate, and are in a building separate from the main building. They are so situated with reference to the boilers as to require the least amount of piping. Each tank is connected independently to each furnace by pipes. The oil is distributed to the furnaces from the auxiliary tanks by the National Oil Company's system. All tanks are equipped with heating coils, so that the oil can be heated with exhaust steam when-ever necessary.
The feed water is supplied from the water mains of the Spring Valley Water Company. In order to keep this expense at a minimum the water from the surface condensers is filtered and used again. The filter was designed by the Union Iron Works and is of a simple nature. It consists of a number of felt strainers, which catch the scum and oil. The strainers can be taken out of the filter one at a time, cleaned and returned without interfering with the process of straining.
| |||
| Suction Pipes for Condensing Water |
The station at the present time is equipped with four sets of Green economizers, having 480 tubes each. When completed the station will have eight sets of economizers. The piping is so arranged that any one of the four economizers can be used with anyone of the four batteries of boilers.
The plant is designed for four engines, two of which are now in use. They are of the vertical marine type, and were built by the Union Iron Works of San Francisco. They are triple-expansion, with thirty-two-inch, fifty-two-inch and eighty-inch cylinders and forty-two-inch stroke. They are built for a a working pressure of 200 pounds, at a speed of 136 revolutions per minute. Their normal capacity is 4080 horsepower each, but they are built for an overload of 25 per cent., so that the entire output of the plant when completed will be over 20,000 horsepower. It maybe stated here that these engines are the largest stationary engines that have ever been built or used on the Pacific Coast.
The condensers are known as the marine type surface condensers. They are fitted up with 3034 tubes, 3/4 -inch in diameter, and have a cooling surface of 7200 square feet. Arrangements are made by means of atap in the exhaust pipe so that they can be used as jet condensers. The air pump cylinder is thirty-four inches in diameter, with a twelve-inch stroke, and is designed so that it can handle a large volume of water when the condenser is used as a jet condenser. The water used for condensing, which at low tide is eight feet deep, is pumped from the bay, through two thirty-inch pipe lines, laid on a pier. The pump is electrically driven and is at the end of the pier. The discharge pipe is the same size as the suction pipe, and is also built out in the bay in the same manner. It does not extend out so far, however. The suction pipes are provided with manholes every 100 feet for cleaning. The suction bonnet has thirty-seven five-inch valves and a brass strainer. A crane is provided for lifting the strainer out of the bay for cleaning purpose. The entire condensing water outfit is made in duplicate, so that no engines will have to shut down when any repairs are made or cleaning is being done.
![]() |
| Standard Transmission Pole |
Each engine is direct connected to two twenty-two-pole, 1200-kilowatt, 136 revolutions per minute, 13,200-volt, twenty-five-cycle, three-phase, General Electric, revolving field generators.
The fields are excited by a M. P., six-pole, 100-kilowatt, 500 revolutions per minute, 125-volt exciter driven by a six-pole, 150-horse-power, 500 revolutions per minute, 350-volt induction motor when under light load. Under full load the fields are excited by a M. P. eight-pole, 200-kilowatt, 500 revolutions per minute, 125-volt exciter, driven by a six-pole, 300-horsepower, 500 revolutions per minute, 350-volt induction motor. For starting purposes the fields are excited by one M. P. six-pole, seventy-five-kilowatt, 250 revolutions per minute, 125-volt exciter, driven by an engine. There are two air-blast transformers in the station for the induction motors driving the exciters and blowers. They are three-phase, twenty-five-cycle,150-kilowatt and 300-kilowatt, 13,200-370-volt air-blast machines. The two motors driving the fans are of the type known as 1-four-pole, two-horsepower, 750 revolutions per minute, 350-volt induction motors.
![]() |
| Front Elevation of the Fillmore Street Substation |
The station contains eight General Electric motor-controlled oil switches. Four of these are connected to the generators, two to the outgoing lines and the other two to the exciter panels. The switchboard contains four generator panels, two outgoing line panels, two induction motor panels for the exciters, three exciter generator panels, one exciter feed panel controlling four generators, two blower motor-starting panels and two induction motor-panels. Each panel is equipped with suitable disconnecting switches, instruments, etc.
The entire electrical equipment of the main building and of the substations was made and equipped by the General Electric Company. An electric traveling crane with a capacity of thirty tons has been installed so that any part of generators and engines can be easily handled. The machine shop is equipped with lathes, drill presses and other necessary machines, all electrically driven.
The transmission line work is in charge of S. L. Foster, chief electrician of the company, and is constructed in a thoroughly up-to-date manner.
The line is run from the North Beach power house to Fillmore Street, a distance of several blocks, and thence, via Fillmore Street, to Turk Street, where the first substation is located. This substation is a distribution point for the transmission lines to the other two substations. From the Turk Street and Fillmore Street substation the transmission lines are run along Church Street, Sixteenth Street, Guerrero Street, San Jose Avenue, Thirtieth Street, Chenery Street, Diamond Street and San Jose Avenue. The distance from the main power station to the Turk Street and Fillmore Street substation is about 10,000 feet, to the Geneva Avenue and San Jose Avenue substation, 31,000 feet; to the Millbrae substation, 85,000 feet.
![]() |
| Route of the San Mateo Extension of the United Pailroads |
The poles are square-sawed redwood, fifty feet high, sixteen inches by sixteen inches at base and ten inches by ten inches at top. They are set in concrete after having been given a heavy coat of crude oil. The cross-arms are of Oregon pine, four inches by six inches by five feet five inches and four inches by six inches by seven feet five inches. The poles are painted a dark green. The cross-arms are painted a bright yellow, to conform to a city ordinance pertaining to high-tension lines.
There are two circuits from the main station to the first substation, each consisting of three No. 000 solid, triple-braided water-proof wire. Each of these circuits are on one side of the pole, having one wire on the upper or shorter and two wires on the lower cross-arm. From the first sub-station there are two circuits of three No. 0 wires each. One of these circuits will end at the second substation and the other goes to the third substation. Both of these circuits are on the same poles. Iron pins with porcelain bases are used. The insulators are known as the Locke No. 100 brown porcelain, single-petticoat insulators. They have been tested to 50,000 volts.
| |||
| The Crossing at Mission and Twenty-Fifth Streets |
The Turk Street and Fillmore Street substation is forty-five feet by 109 feet. The Geneva Avenue and San Jose Avenue substation is forty feet by seventy-five feet. These substations are entirely fireproof, being built on the same general lines as the main powerhouse, with the exception that the slate roof is nailed to the cinder concrete instead of to board strips, as in the main powerhouse.
The present equipment of the Turk Street and Fillmore Street substation consists of six ten-pole, 750-kilowatt, 300 revolutions per minute, 600-volt compound-wound rotary converters; eighteen twenty-five-cycle, 13,200-440-volt air-blast transformers; three-blower motor sets, each consisting of one 1-four-pole, five-horsepower, 750 revolutions per minute, 350-voltmotors and one fifty-inch blower. There are ten motor-controlled oil switches, six being connected with the rotary converters, two to the incoming lines and two to the out going lines. The switchboard has two panels for incoming wires, two for outgoing wires, six for rotary converters for the alternating, and six for the direct current, six for rotary starting motors, three for the blower-starting motor and thirty for direct-current feeders.
| |||
| Section of Double Track Roadbed |
The equipments of the Geneva Avenue and San Jose Avenue stations consists of three six-pole, 500-kilowatt, 500 revolutions per minute, 600-volt compound-wound rotary converters; nine twenty-five-cycle, 185-kilowatt,13,200-440-volt air-blast transformers; two blower sets, each consisting of one 1-four-pole, five-horsepower, 750 revolutions per minute, 350-volt motor, and one fifty-inch blower. The switch-board has the necessary panels for the rotaries, alternating current lines, etc., and also four panels for direct current feeders. The equipment of the Millbrae station is detailed later.
With the extension of the system of the United Railroads of San Francisco from Holy Cross Cemetery to San Mateo, the promoters of the original San Francisco and San Mateo Electric Railroad Company have witnessed the realization , albeit attained by others, of their conception of an all-electric line between the heart of San Francisco and the charming suburb of San Mateo. Here-tofore the residents of the latter city who attended to business in San Francisco were obliged to rely solely on the steam train service of the Southern Pacific Company as a means of transportation, and although this service was fast and comparatively frequent, it was by no means satisfactory in that missing a train in the morning would mean a wait of an hour or so, while shoppers to the city who lived in San Francisco were obliged to devote a whole day to the trip. Theater-goers were forever sparring with the time of departure of the last train, and to miss it would mean spending a night in San Francisco, with incidental hotel expenses .In addition to these shortcomings, ten or fifteen minutes in additional time would be spent in traveling on street cars in the city before one's place of business could be reached. In fact, the steam service, though good for its kind, could stand no favorable comparison with the service to be rendered by electric cars, with their perfect flexibility, that has been so evident in every instance wherein electricity has come into competition with steam as a means of transportation to suburban localities.
| |||
| Scenes Along the San Mateo Extension |
1. A TYPICAL VIEW OF THE TRACK AND TRANSMISSION LINE
2. AT THE TANFORAN RACE TRACK
3. SPANISH AROHITECTURE IN THE MILLBRAE STATION
4. A LONG FILL JUST OUTSIDE OF SAN MATEO
Millbrae, situated some thirteen miles southeast by south of San Francisco, and about one-quarter of the way to San Jose, practically marks the beginning of that magnificent stretch of country reaching beyond Palo Alto, which is famous as containing the magnificent homes of the many Californian millionaires whose deeds and wealth have made their names known throughout the world. About these grand old estates wealth and society have gathered, with the result that from San Mateo to Palo Alto may be found superb country places which may be regarded as being to San Francisco what Newport is to New York. There exists throughout the entire line of the electric road a closely populated region which abounds in diversified means of enhancing the patronage of the line. In San Mateo County, just across the border line of the City and County of San Francisco, are located the principal of the city cemeteries, consisting chiefly of Mount Olivet, Salem, Home of Peace, Cypress Lawn, Sherith Israel, Hills of Eternity, Emanuel and Holy Cross Cemeteries. Beyond is the Tanforan racetrack, nearby which are the abbattoirs and various manufacturing industries of Baden lying along the San Bruno canal; then follow the towns of San Bruno, Millbrae and Burlingame before the city of San Mateo is reached. The electric line of the San Francisco and San Mateo Electric Railway Company has been running through from the city to Brookville, which is in reality but another name for Holy Cross Cemetery, for several years, but it has only been since the absorption of the company named by the United Railroads of San Francisco that it has been finished on to San Mateo, as originally projected. It is the purpose of the present company to extend the road from San Mateo first to Palo Alto and then to San Jose in the near future. When the United Railroads took possession of its various railway properties in San Francisco, among them it acquired, as heretofore intimated, the partially completed line to San Mateo, eleven miles of which had been finished ,and of these eleven miles about four miles were in the city proper. The new extension to San Mateo has a length of practically 10.6 miles further, all of which has been built through a private right of way, with the exception that from Burlingame to San Mateo franchises have been secured to run on the streets.
A map of the double track with cross-overs, switches, etc., from Holy Cross to San Mateo, and a sectional drawing showing roadbed construction, are presented. The ties are redwood, six inches by eight inches by eight feet. They are placed two feet six inches from center to center. The rail is a seventy-two pound T-rail, on the private right of way. The joints are cast-welded, with an expansion joint every 1000 feet. Each cast-weld weighs 110 pounds. In the town of San Mateo a nine-inch girder rail is used. With the exception of a slight grade in San Mateo the interurban line is practically level. Several views, reproduced from photographs, illustrate typical cuts and fills. Except in San Mateo the entire interurban line is heavily ballasted with crushed rock. Track centers are thirteen feet and the gauge is standard.
![]() |
| Plan of the Millbrae Substation |
Wooden side-pole construction is used on the entire interurban section. The poles carrying high-tension wires are seven inches by seven inches at the top, thirteen inches by thirteen inches at the base, and thirty-five feet long. The other poles are eight inches by eight inches at the top, twelve inches by twelve inches at base, and twenty-five feet long. They are all of redwood, and the portion which extends into the ground was coated with crude oil. They are painted a dark green, with a mixture of linseed oil, yellow ochre and lamp black.
The cross-arms are all made of Oregon pine, those carrying the high-tension-wires being four inches by six inches by five feet, and four inches by six inches by seven feet. The three high-tension wires are arranged in a triangle on one side of the pole ,making it possible to add another set if it is desired . One wire is carried on the upper cross-arm and two on the lower. The wire is No. 0 and is triple braided, waterproof. The Locke No. 100 brown porcelain, single petticoat, iron pin insulators are used. The cross-arms carrying the feeder wires are four inches by six inches. Steel pin porcelain insulators are used. There are at present five feeder wires from Millbrae substation, all being 500,000 circular mils. The trolley wire is No. 00 hard-drawn copper. The span wires are five-sixteenths-inch galvanized iron strand wire. The ears are all soldered. The construction work on this line follows the same high standard as that adopted on other parts of the system.
| |||
| Exterior and Interior Views of the Millbrae Substation |
Power is furnished to this line as follows: From the ferries to Thirtieth Street the Bryant Street power house furnishes directcurrentat550 volts; from Thirtieth Street to Holy Cross the Geneva Avenue substation supplies the power, and from Holy Cross to San Mateo the Millbrae substation is depended upon. The latter section, supplied by the Millbrae substation, includes almost all the interurban portion of the road, although the Geneva Avenue sub-station has sufficient capacity to supply both the suburban and interurban sections, and enable the Millbrae substation to be closed down when the rush hours are over, but this necessitates transmitting power for about fourteen miles. It is being done, however, with fair success, through the aid of sufficient feed wire and a good return circuit employing cast-welded joints.
The Millbrae substation, illustrated herewith, is a substantial fireproof, red brick building, forty feet by seventy-five feet. The walls and foundations are built of brick and cement , the floor is of concrete, and the roof is covered with best quality California slate, nailed on cinder concrete. The station is well lighted by large windows. The walls and ceilings are painted with light, harmonious colors, thus presenting an inviting appearance. Awaiting room is provided for passengers in the basement, the floor of which is on a level with the track. A toilet room, lockers, telephone booth, desk, neat work benches, supply closets, etc., are provided for the comfort and convenience of the men operating the plant.
| |||
| Standard Car Used on the San Mateo Extension |
The station is equipped at the present time with two six-pole,500-kilowatt, 600-volt compound wound rotaries, operating at 500 revolutions per minute; two sets of three each of twenty-five-cycle, three-phase, 185-kilowatt, 13,200-440-volt air blast trans-formers; one blower set, consisting of one four-pole, two-horse-power, 350-volt induction motor, directly connected to a Buffalo Forge Company forty-inch blower, operating at 750 revolutions per minute; two motor controlled oil switches, operated from a storage battery in the basement; two reactive coils, connected on the low-tension side of the transformers, and switchboard with the usual complement of instruments, circuit breakers and switches. The Geneva Avenue substation is a counterpart of the one at Millbrae, with the exception that it contains three 500-kilowatt rotaries.
There are five feeders going out from the switchboard, all being 500,000 circular mils. There is room enough in the station to double the present equipment, if it is desired.
Alternating current is transmitted to Millbrae substation from the main power plant of the United Railroads at North Beach at 13,200 volts, over a distance of about 85,000 feet. At Millbrae the current is stepped down to 440 volts and then converted into direct current at 550 volts. The entire electric machinery is of the General Electric type.
![]() |
| Power Circuits in Wiring Plan for Forty-Five-Foot Car |
For the purpose of blowing out the rotaries a ten-horsepower, 550-volt, 2100-revolution Christensen automatic motor compressor has been installed.
A traveling crane, with an eight-ton Yale & Towne triplex tackle block for handling machinery, is also a part of the substation equipment.
The cars are of the monitor deck pattern, with drop sash, cross seats, smoking compartment and vestibuled ends. They were built by the Laclede Car Company, of the following dimensions: Length over all, forty-five feet nine inches; length over body, thirty-four feet four inches; width over sills, nine feet; width over belt rail, nine feet two and one-half inches; width over drip board, nine feet six inches; width oversteps, nine feet eight inches; height of car from bottom of bolster to top of trolley board, nine feet four inches; bolster centers, twenty-three feet.
![]() |
| Wiring Plan for Lighting Forty-Five-Foot Car |
The framing of the car is made especially strong. The side sills are long-leaf Southern pine, four and three-quarter inches by seven and one-half inches, plated on the outside clear around the sills with five-eighths-inch by six-inch steel plate. On the inside the sills are plated with six-inch channel iron. The two center longitudinal sills are eight-inch I-beams filled with wood. The end sills are four-and-three-quarter-inch by seven-and-one-half-inch Southern pine . The longitudinal sills are joined to end sills and plates with angle-irons securely bolted . The whole frame-work is securely cross-braced and tied together with eleven three-quarter-inch tie rods. The posts are all of straight grained white ash. The corner posts are three and three-quarter inches thick, and the side posts three and one-quarter inches thick. There are four ash ribs between every two posts. The panels are of one-half-inch dried poplar. All posts are fastened at the top to letter board by means of malleable iron angle brackets. The car lines over each post are plated with steel. The roof is covered with No. 8 cotton duck, well laid in white lead and painted with three coats of "Trolley Top."
The platform sills are made of six-inch channel iron, bent to the required shape and bolted to longitudinal sills. The bumpers are of three-and-one-half-inch by six-inch by three-eighths-inch angle iron, with draw-bar cup set in. The dashers are made of No. 12 soft steel. The steps are covered with Universal safety treads. Vestibules are equipped with Wood folding gates, and the doors are of the mutually operating sliding type, having an opening of thirty-six inches. They are one and one-quarter inches thick and made of cherry.
The sashes are made of cherry, so arranged that they can bedropped and a small trap or shelf closed over them, thus not only hiding them, but also preventing passengers from throwing paper, etc., in the openings.
The ventilator sashes are glazed with chipped glass, and are hinged on the ends, so that by operating a small brass handle two at a time can be thrown open. The seats are of the Hale & Kilburn walkover type, upholstered with rattan, and have a grab handle on the back. They are thirty-seven and three-quarter inches long and eighteen inches wide. A novel feature is introduced to keep people from sliding off the ends of the seats ,and also providing more seating capacity on the seat by having a concave casting on the end, extending about three inches above the seat. This casting can be seen on the seats in the interior view of the car presented herewith, and it does not interfere with passengers, but adds greatly to their comfort. The aisle still has a width of twenty-seven inches, so that these castings do not cutdown this space to any extent. The legs of the seats are bent toward the sides of the car, leaving a space under the end for packages. There are eighteen seats in the main compartment and six in the smoking compartment.
| |||
| A 4400 Gallon Oil Tank Car |
The interior of the car is finished with selected cherry and the ceilings covered with three-ply bird's-eye maple veneer, deco-rated with a single stripe of aluminum leaf.
There are twenty-five thirty-two candle power lamps used for lighting, twelve being placed along the sides, six on each side, and three three-light clusters on the ceiling of the main compartment, and one two-light cluster in the smoking compartment. There are also two lamps on the back platform, so wired that the rear platform can always be lighted and the front platform kept dark. Two oil lamps are in the car to be used in case of emergency.
Pantasote curtains with spring rollers are placed over each window and also over the end doors, so as to prevent the light from being thrown on the vestibule windows and blinding the motorman. The door curtain rollers are placed under neat wooden boxes on the outside and slide in grooves, so as to prevent the curtains from flapping.
Each platform is equipped with a new departure rotary foot gong, a Ham sand box, a Christensen air whistle and a Sterling hand brake, with Laclede twelve-inch handle. Mosher detachable arc headlights and Railroad Signal and Lantern Company's oil signal lanterns are used. The cars are also equipped with Christensen straight air brakes. The brake rigging is an outside link-hung one.
The trucks for these cars are the Brill standard No. 27. The wheel base is six feet. The side frames are solid forged steel. The wheels are made by the St. Louis Car Wheel Company, are thirty-three inches diameter; weigh 450 pounds and have eight spokes. The treads measure two and one-quarter inches and the flanges three-quarter inch. On account of passing over grooved rail in the city it was impossible to make the dimensions any larger. The axles are of Jones& Laughlin cold rolled steel , four and one-inches diameter.
Each car is equipped with four General Electric 57-A motors, inside hung. The fields, instead of being wound on brass spools, are "mummified," so as to admit of the maximum insulation. K-14 controllers and grid resistances are used. The pinions have twenty-four teeth and the gears sixty-two.
The trolley bases are placed ten feet from the ends of the upper deck. The trolley poles are fifteen feet long and the wheels six inches in diameter. Kalamazoo harps and wheels are used.
The wiring and making of the cables was done by the railroad company, and instead of nailing up the cables with leather straps they were screwed to the floor with large wooden cleats to facilitate inspection. Particular attention was paid to make perfect splices and to the protection of all electrical apparatus from dirt and water.
The motor bearings are lubricated with oil. This is accomplished by fitting a thin brass shell cup into the grease cups. In the middle of this brass oil cup a one-half-inch brass pipe runs up nearly to the top edge. An ordinary lamp wick leads from the oil surrounding this one-half-inch pipe down through the pipe to the bearing. The life of the bearing is thus prolonged to a considerable extent, as it is not necessary for the bearing to heat up before the lubricant starts to run.
In designing these cars it was not intended to spend any money on superficial decoration, but every effort was directed to make them strong, neat, roomy, comfortable and easy to keep clean and repair.
In order to insure safety and to warn people of the danger on the private right of way, several precautions are taken. In the first place, the private right of way is fenced in. At every point where a road crosses the private right of way cattle guards are put up, and signs reading, "Danger ! Look Out for Electric Cars!" are placed on each side of such crossings.
Light clusters are placed over these crossings, so that a clear view of the signs and of the crossing maybe had at night. People who attempt to walk on the private right of way will find signs as follows: "No Thoroughfare-Private Right of Way," staring them in the face. On all gates leading to the private right of way are signs warning people to close them, otherwise making themselves liable to prosecution.
The arc headlight, air whistles and rotary gongs on the cars are used within their respective limits to give warning. The redsignal lanterns on the rear and oil lamps in the cars were installed with a view of preventing collisions in case of cars becoming dis-abled at night.
The illustrations given are self-explanatory, with the exception that brief descriptions should be given of the views of the tank car and the crossing. The former has a capacity of 4400 gallons, and is used in hauling oil from tide water to the Bryant Street power house. Its equipment consists four two General Electric 800 railway motors. The crossing is that in use at the intersection of Mission and Twenty-fifth streets, San Francisco, where the doubletrack of the Mission Street electric line crosses the single track of the Southern Pacific Company's coast line. The rails are of eighty-pound T on the Southern Pacific line, with a rail of equal weight, but of girder type, on the Mission Street road. The timbers used measure eighteen by eighteen inches, and surfaced by three-quarter inch by eighteen inch plate steel under the Southern Pacific rails, while those of the electric line are mounted on ten inch by fourteen inch timbers surfaced by three-quarter inch by ten inch plate steel.
The cars at the present time are operated every half-hour from 5:30 A. M. to 8 P. M., and every hour from 8 P. M. to midnight. On Sundays and holidays cars are run every fifteen minutes or less, as the traffic requires. The time required to make the trip one way is one hour fifteen minutes, the distance being twenty-three miles. The running time, of course, could be greatly reduced, were it not for the fact that one-half of the entire distance is either through the city or its suburbs. Here, of course, a greater speed than eight or ten miles per hour is not allowed. On the private right of way a speed of forty miles per hour is attained. The fare is 25 cents one way, entitling passengers to transfer to any part of San Francisco.
The general manager of the United Railroads of San Francisco is George F. Chapman, who was formerly general superintendent of the North Jersey Street Railway Company, with headquarters at Newark, N. J. F. F. Bodler, master mechanic of the United Railroads of San Francisco, was also formerly connected with the North Jersey system. To the latter, acknowledgement of thanks is due by the publishers for the information contained in this article.
The work of consolidating and unifying the practice on the different roads which now make up the San Francisco system has been largely in the hands of Mr. Chapman, as has also the new plans for power development, and the successful results of this policy have already been shown.
This resume of the development of the United Railroads would be scarcely complete without mention of the latest pattern of standard cars which have been ordered to supplant those which have gone out of date. Fifty of the new cars have already arrived and will be placed into active service at once.
Another feature of the road is the introduction of palace excursion cars, superbly fitted up, with every convenience and comfort, in which patrons may enjoy all the views San Francisco affords without the annoyance of stoppages, or indulge in evening "trolley parties" with pleasant surroundings, refreshment and music ad lib. The latest addition to the number of palace cars is the "San Francisco," which is chartered almost every day there is any event of note taking place at the Ingleside race track. The company also runs special excursion cars at stated hours daily making stops only at points of unusual interest, and traversing every section of the city.


















