[Trade Journal]
Publication: Engineering News
New York, NY, United States
vol. 58, no. 16, p. 397-404, col. 1-3
SINGLE-PHASE ELECTRIC TRACTION ON THE
ROCHESTER DIVISION OF THE ERIE R. R.
By. W. N. SMITH,* M. Am. Inst. E. E.
One of the significant electric railway developments of the present year was the change from steam to electric motive power on a portion of the Rochester division of the Erie R. R., in New York state, on June 18. It is evident that this antedates slightly the commercial operation of the high tension system on the New York, New Haven & Hartford R. R., and the claim may justly be made that this is the first single-phase alternating current system of electric traction, upon a steam railroad, to go into commercial operation. It follows, of course, that this system was the first to put into commercial service an 11,000-volt trolley wire in this country and the first heavy traction system drawing power from a 60,000-volt transmission system.
The section of track equipped is 34 mi. long, extending from Rochester over the main line of the Rochester division to Avon, a distance of about 19 mi., thence 15 mi. over the Mt. Morris branch. The railroad is entirely single track, with sidings at way stations, averaging 3 to 4 mi. apart. The grades are light, and the curvature for the most part quite easy, the line being relatively very straight.
The line was originally laid with 68-lb. rails, but was relaid with 80-lb., taken from another division just prior to the electrification. The roadbed is ballasted with gravel, and the joints are of the Weber type. A single bond of comparatively small size (equivalent to No. 0000, B. & S. gage) is applied at each rail joint under the fish plate. It will be remembered that, with this system, small bonds are considered permissible on account of the comparatively small current and the high impedance of the main circuit. The line crosses several bridges.
| |||
| Four-Car Electric Train, Erie R. R. |
The electric service is for local interurban passenger traffic. The principal villages served are Avon, Geneseo and Mt. Morris, the other regular way stations being little else than cross-road stops. The population is entirely agricultural, and the Genesee Valley traversed by this line is one of the most beautiful and prosperous farming regions in New York State. The freight service is handled exclusively by steam as heretofore, as are also the through trains operating between Rochester and Corning over the main line of the Rochester division, a distance of about 94 mi. The steam service between Rochester and Mt. Morris originally comprised three round trips daily. Instead of three roundtrips per day, the electric service has introduced six complete round trips between Rochester and Mt. Morris, and three more between Avon and Mt. Morris.
POWER SUPPLY.
TRANSMISSION LINE. — The power comes from the Niagara Falls plant of the Ontario Power Co., over the lines of the Niagara, Lockport & Ontario Power Co., as three-phase current at 60,000 volts. A branch line from this system was built along the Erie right-of-way from Mortimer, about 4 mi. south of Rochester, to Avon, where the main substation is located. The pole construction upon this branch transmission line is of the A-frame type, using two40-ft. cypress poles, set abreast of each other, and inclined so that their tops are framed together, the butts being joined by horizontal plank braces underground. The cross arms consist of two 3 1/2 x 6-in. timbers, 8 ft. long. The insulator pins are of cast steel, one, being placed at the apex of the A-frame and the other two bolted near the extremities of the cross arms, so that there is an equilateral spacing of 7 ft . between each of the three wires. This construction is shown in Fig. 2, at the right of the track. The standard length of span between A-poles is 220 ft., which is shortened at curves when necessary. The conductors are of No. 4 hard drawn, stranded copper cable. When crossing over the tracks of the Erie, or other railroads, recourse is had to a special construction of No. 0 copper cables carried on steel towers, so reinforced by guys that it is impossible for a failure of the line to result in dropping the conductors across railroad tracks. The insulator pins are grounded by copper wire. The neutral of the transmission system is grounded at the power station through a resistance. Lightning protection of the horn arrester type has been installed at every fifth pole.
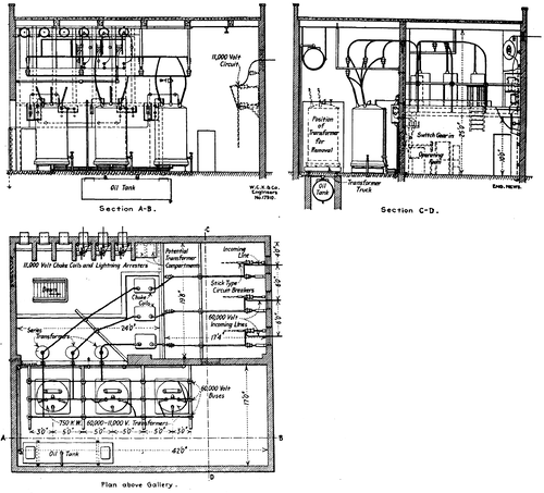
SUBSTATION. — The substation building is adjacent to the roundhouse and division shops at Avon. The building is entirely fireproof, having brick walls on concrete foundations, roof and floors of reinforced concrete and doors and windows of kalamein construction, fitted with wire glass.
The main floor is divided into three rooms: a main transformer room, 42 x 17 ft., of the full height of the building; a high tension room 17 ft. 4 ins. x 19 ft. 8 ins.; and the operating room, 19 ft. 8 ins. x 24 ft. Directly over the operating room is a mezzanine floor on which are located the 11,000-volt lightning arresters, the 60,000-voltseries transformers and choke coils.
There is a space in the transformer room for another transformer of the same size and there is also space in the high tension room for an oil insulated circuit breaker should it ever be considered necessary. The interior is painted with cold water paint of the same light green shade that is commonly used by the Erie R. R. for interior finish.
The transmission line terminates at the lightning arrester yard in the rear of the substation. The arrangement of the 60,000-volt lightning arresters consists of three horn gaps, arranged one behind the other, on each of the three conductors, the first gap being 44 ins. across, the second 5 and the third 6 ins. A concrete column is in series with the first gap, an electrolytic arrester in series with the second and a 5-ft. fuse of No. 18 copper wire in series with the third, that is to say between one horn and the ground. Both horns of each gap are of 2-in.round iron. Between the line and the first arrester there is a hook-type knife switch, and between the last arrester and the lead into the substation is a No. 18 copper wire fuse, in each conductor, placed horizontally upon the structure especially devised for it on top of a pole.
These fuses are enclosed in wooden tubes about 5 ft. long, wrapped with torpedo twine. The entire arrangement of lightning arrester gaps, fuses and switches is mounted upon 18 chestnut poles; and a suitable elevated platform, railed off and fitted with a gate to keep out trespassers, affords means of access to the apparatus when attention is required.
The three high-tension conductors enter the substation through glass disks held in 36-in. tile, set in the upper portion of the rear wall of the substation. Within the substation the wires first pass through three 60,000-volt, stick-type, circuit breakers, mounted directly inside of the rear wall, over bare copper conductors to three oil-insulated choke coils on the mezzanine floor, thence to three oil-insulated, series transformers, also on the mezzanine floor, from which connections are taken to the power measuring instruments in the operating room. The main connections pass to a set of copper busbars in the transformer room.
The 60,000 three-phase current is rendered available for single-phase distribution by means of three 750-KW. Westinghouse transformers of the oil-insulated, water-cooled type. For the present installation, only two transformers are used at one time, the third being a spare. The transformer windings are fitted with taps enabling the three-phase to two-phase "Scott connection" to be used. The necessary transformation from three-phase to two-phase, fits in very well with the natural sub-division of the electrified line, into two sections, one of which is about 19 miles in length, north of Avon, the other about 15 miles in length, being to the south of Avon. The connections were, therefore, laid out to operate such sections upon separate phases of the two-phase secondary system. Either the T or V connection can be used, the latter method being employed at present. Each one of the active transformers therefore feeds a separate section.
The low tension windings can be so connected that either 11,000 volts or 22,000 volts can be obtained, so that in case it should ever be desired to transmit railway current for an extension of 40 or 50 mi., to another substation it could readily be done without adding transformers to this equipment. The low tension windings also have six taps, enabling relatively small variations in the secondary voltage if the same should be necessary to suit operating conditions in the trolley line. One end of each low tension winding is directly grounded to the boiler iron case, which in turn is, by means of a No. 0000.stranded copper cable, directly connected to the track return circuit.
The transformer cases are made of boiler iron, and set on a square cast iron base, which is in turn mounted on three pairs of wheels running upon an iron sub base set in the concrete floor of the room. A track runs lengthwise of the room directly in front of the transformers, a transfer truck running upon it, upon the top of which there is another set of little wheels or rollers, which line up with those upon which the transformer cases are set. At the rear end of the transformer room a 10-ton hand hoist is provided which is able to lift any part of the transformer that repairs may make it necessary to handle.
Two cylindrical boiler iron oil tanks are provided, each of slightly greater capacity than a single transformer. One is located in the basement directly under the transformer room, so that the oil from the transformer can readily be drained into it. The other is suspended from the concrete roof beams at the top of the trans-former room, close to the side wall of the building, this being intended to act as a reservoir for distributing oil back into the transformer. The oil is pumped from the lower to the upper tank by means of a steam pump supplied from the boiler room in the adjacent division roundhouse, where steam is always available. From the upper tank oil is fed by gravity into either trans-former. It is thus a simple matter to draw the oil off from any transformer if its insulating qualities are found to have depreciated, and the dehydrating, filtering or purifying apparatus can readily be employed with the aid of the pump, and the supply returned again to storage. The oil piping is of iron throughout.
The water circulation is by gravity, the supply coming from the railroad company's water tank system, at the adjacent round house, being pumped originally from the Genesee River about a mile distant. There are three separate water cooled coils in each transformer case, each one controlled by its own valve, so that the amount of water may be controlled as found necessary under various conditions of load.
As mentioned above, one terminal of each single-phase 11,000 volt transformer is grounded. The middle transformer of the three is ordinarily used as a spare, and the other low tension lead from this transformer runs to the center of a double throw switch, whose outside poles connect separately to two low tension bus bars. The ungrounded low tension terminals of the other two transformers connect through single-pole switches, one to each of these bus bars. The low tension bus bars run along the wall of the operating room, and directly beneath them are three Westinghouse automatic oil circuit breakers, one one each of the two trolley feeders, the third breaker which is situated between the other two being a spare. One pole of each of the three circuit breakers is connected to the center pole of a double-throw, hook-type knife switch, by means of which it is thrown upon either bus bar. The other pole of the circuit breaker runs directly to the feeder. The outgoing lead from the middle or spare circuit breaker, can instantly be thrown upon either one of the feeders, should the circuit breaker usually controlling that feeder be temporarily disabled. This system is shown in the diagram Fig. 4.
The outgoing 11,000 volt feeders run up to the mezzanine floor directly over the operating room, where they emerge from the building through perforated glass disks, set in 18-in. round tiles. Before emerging there are tapped to them two Westinghouse low equivalent lightning arresters, set in brick compartments, and reinforced by two electrolytic lightning arresters of the 11,000 volt type. A set of call bells is provided so that when the automatic breakers open, a bell is rung in the car inspection shed, adjoining. Also, if the temperature of any transformer runs above normal, a bell circuit connected to a thermometer in the top of the transformer tank is similarly made to operate. The station itself does not require the continuous presence of an attendant, which is needed in the case of a rotary converter sub-station. The working force is so organized that the car repair men are always available for manipulating the substation circuit breakers, and the cost of attendance is thereby reduced to a minimum.
OVERHEAD CONSTRUCTION.
The catenary construction is in many respects unique. As there were very few precedents to follow, many of the details of the overhead work are entirely original and nearly all of them were specially designed for this installation.
SUPPORTS. — The poles are of chestnut averaging 25 in. in circumference at the top, and about 42 in. at the butt. Most of them are about35 ft. long, but 40 ft. poles were used where the embankments were narrow and steep, and in span construction. Nearly all the construction is of the bracket type, except at the railroad yards at Rochester, Avon, and Mt. Morris, and for some distance at Mortimer, where there is a siding on each side of the main track, which prevented the use of bracket construction. The poles are given about 12 ins. rake. The poles are tamped with cobblestones, of which plenty were available from the coarse gravel with which the road is ballasted. The ground proved very deceptive as regards the nature of the digging, much water bearing gravel and quicksand being encountered, and oil-barrels had to be resorted to in many instances to prevent caving in of the holes during pole setting.
BRACKET CONSTRUCTION. — The bracket, an entirely original design, consists of a 3 x 2 1/2-in. T, 10 ft. long, the heel of which is fastened to the pole by a pair of bent straps, the outer end being supported from the pole top by two-in. steel truss rods, instead of the single rod commonly used. The two rods are attached about 27 in. back from the outer end, and run to each side of the pole, and are fastened thereto a pole clamp which grips the top of the pole instead of requiring the bolt or truss rod to passthrough it. In this way the timber is kept in-tact, and there is no hole to admit moisture and to induce rot. The two truss rods are threaded at both ends and at the upper end each one passes through a small iron casting which is in turn carried upon a bolt projecting out from the cast iron portion of the pole clamp, like a trunnion. The whole construction is extremely rigid, and is stronger and more conducive to a long life for the pole than any bracket before developed. Where necessary, at switches, extra long brackets are employed , being lengthened by splicing and an extra truss rod being attached by means of a clamp, to the outer end of such a bracket, and run to the extreme top of the pole. The ordinary bracket construction is shown in Figs. 2 and 6.
The insulator pins are of malleable iron, of a type specially devised for this work. The lower portion of the pin is divided and fitted closely over the flanges of the T bracket, being provided with a single 5/8-in. bolt by means of which the lower split portion of the pin is clamped securely against the bracket.
The insulator is of special design, 6 7/8 ins. in diameter and 6 ins. high, of the three petticoat type, but made in two parts cemented together. As most of the overhead work was done during the winter months, and had to be rushed, a quick setting mixture of litharge and glycerine was used in place of Portland cement.
The insulator pins are ordinarily about 12 ins. from the end of the bracket, but there is 27 1/2 ins. space between the end of the bracket and the point where the truss rods support it, which enables sufficient variation in location of insulator to meet most of the requirements in shifting the alinement [sic] alignment of the trolley wire on curves.
CATENARY LINE. — The messenger wire is of seven-strand "extra high strength" steel and is of 7/16 in. diameter. Joints are made by using the so-called "open" and "closed" cable sockets, the sockets being sweated on to the abutting ends of the cables and joined by a pin connection through the eyes of the sockets. The trolley wire is No. 000 B. & S. grooved copper, the lengths being spliced with the usual type of soldered splicing sleeve.
The spans on the straight line track are 120 ft. in length, and as much shorter than this on curves, as required by the radius of the curvature. The maximum deflection from the centerline of the track, on curves, is 7 in., each way. The catenary hangers are assembled drop-forgings spaced 10 ft. apart. The messenger clip and the trolley clip are of the same type but grooved differently to accommodate their respective wires. They are joined by a 5-in. iron hanger-rod, with right-hand threads on each end, the longer rods being flattened in the middle to admit of bending them slightly, so as to conform to the divergence of the messenger and trolley wire near the ends of the spans. Both trolley and messenger ears are secured in position by jam nuts. This type of suspension was developed especially for this installation, and is so constructed that there is no possibility of parts coming loose and falling apart on account of vibration. The general hanger construction is shown in Fig. 5.
![]() |
| Fig. 3. Plan and Sections of Erie R. R. Substation at Avon, N. Y. |
"Steady strain-rods," to prevent movement of the trolley wire about the catenary, are provided. These are mounted at one side of the bracket, instead of directly underneath, in order to give sufficient clearance for the ends of the paragraph bow on curves where the super-elevation results in the tilting of the shoe from the horizontal. Each steady strain-rod is hinged to a spool-type porcelain strain insulator clamped to one side of the bracket in such a manner that the hinged end of the rod is almost at the elevation of the top of the T bracket. The method of attaching the steady strain insulators to the bracket is such that they can readily be shifted along the bracket to follow up any change in alinement of the trolley wire that may be required by curvature or for any other reason. The clamps holding the steady strain-rod insulators are of 3 x 3/8-in. bent iron. The spool-type insulators are cemented on to pieces of 4-in. pipe, through which passes the 5/8-in. eye bolt by means of which they are attached to the bent irons. Steady strain-rods are used only on curve and turnouts and were not found necessary on tangent track. Their use is shown in Fig. 8.
Light tie wires (No. 9 Extra BB, galvanized telegraph wire) were used because it was thought best not to make too rigid an attachment be-tween the messenger wire and the insulator; so that if a bracket became detached from the pole for any reason , its weight and the shock of detachment would tear the wire clear from the messenger and allow the bracket to fall entirely away from the wire so reducing the chance of interfering with steam trains.
An accident to the electrical equipment of a railway operating both steam and electric trains, may shut down the electric service , but will not automatically place any check upon the steam service, so that accidents to steam trains must be guarded against . This special requirement for safety was one of the reasons for installing the system of connecting the brackets to the rails as shown in Fig. 7. The "ground rods" consist of 3/8 × 1 3/4 -in. flat steel, with their upper and lower ends bolted to trolley bracket and track rail respectively. The system was carried out consistently throughout the installation. Every bracket is grounded to the rail, so that an insulator failure will instantly throw off the power(by tripping a circuit breaker), as it will cause a complete metallic short-circuit. There is thus no danger of setting the wooden poles on fire, which would be possible if this precaution were not taken. The burning of a wooden pole would not of itself necessarily cripple the electric ser-vice, but it would be quite likely to cause an obstruction dangerous to the passage of steam trains which are, of course, independent of any disturbances on the electric motive power system. Up to the present time, however, there have been no cases where the overhead construction has caused any obstruction to the passage of the steam traffic.
SPAN CONSTRUCTION. — The span construction shown in Figs. 8 and 1, is as nearly as possible similar to the bracket construction, and uses the same type of pin and insulator. A piece of 3 x 2 1/2-in. T about 30 ins. long is suspended from the span wire by hangers of galvanized strand cable, adjustable in length and fastened to the span wire cable by specially designed clips, the construction forming a sort of stirrup upon which the pin and Insulator are carried. The messenger wire rests upon the insulator just as in the case of regular bracket construction. This form is used, not only for single track spans but in the yards at Avon and Rochester where three or four parallel tracks are electrified. Span construction, in general, was used only where conditions absolutely required it.
The Rochester yard was a difficult piece of construction on account of the distance between supports (which reaches a maximum of ft. spanning seven tracks, four of which are electrified) and also on account of the uncertain nature of the soil which, on the river bank, is a fill of gravel and cinders. For these long spans, where it was impossible to use guys of the usual type (the river bank being on one side and on the other the main highway to give access for loading and unloading freight cars) it became necessary to use an entirely self-supporting span construction, and this was done by using the "Tripartite" type of steel pole, set in concrete. This type of pole, constructed of re-rolled Bessemer steel rails, is less subject to rust, and consequently more durable than any other available type of metal pole, and all of its surfaces are always open and easy of inspection. On account of the great tensile strength of the material, there is considerable saving in weight, and the fact that it was a standardized product, enabled quicker delivery to be made than if special riveted poles of structural steel shapes had been especially designed for these locations. The span wires consist of the regular messenger cable fitted with cable sockets sweated on at each end, these being fastened to turnbuckles and pole collars at the tops of the poles. There are two span cables at each pair of poles, the upper one being used to carry the weight, the lower one acting to steady the arrangement and also to act as a relay in case of an accident to the upper span. A very simple type of pull-off was devised for curves in span construction, and it so happens that both the Rochester and Mt. Morris yards have considerable curvature. The pull-off consists simply of a spool-type insulator, with apiece of pipe cemented through the center, this pipe being slipped over the hanger spacing rod joining the messenger and trolley clips, thus giving an insulating connection through which an ordinary pull-off cable can be attached to both messenger and trolley, wherever required. The division of the horizontal pull between the messenger and trolley wires is easily adjusted by shifting the spool type insulator up and down the spacing rod, by inserting longer or shorter nipples of pipe underneath it. In general, when near a span wire, the messenger cable is sup-ported rigidly on its insulator and the trolley wire needs all the side pull; but in the middle of a span, the pull must be equally divided be-tween messenger and trolley wire. The use of the pull-over is well shown in Fig. 8.
LOW-BRIDGE CONSTRUCTION. — The presence of several through truss bridges over streams, and two low bridges over the Erie right of way, necessitated the employment of special construction at these points. The bridge at Clarissa Street, on the outskirts of Rochester, was particularly troublesome. The original clearances here were so low that the roadbed had to be excavated out and the track lowered about 2 ft., the minimum clearance between the rails and the trolley wire being finally 18 ft. In such construction the messenger cable is fastened toa horizontal spool-type insulator mounted at the center of a substantial piece of turned oak, which is long enough to carry two more similar insula-tors, one on either side of the center one. The steel hangers reaching down from the overhead bridge structure, carry the two side insulators ,so there are always two insulators in series be-tween the 11,000 volt messenger cable and the her supplemented by the use of steady strain-rods to prevent any side displacement of the trolley wire. The shortest sizes of hanger spacing rods are used in such places. Low-bridge construction is shown in Fig. 9. Where the bridge trusses are high enough to permit it an iron stirrup is employed like that used in span work, which carries the standard form of straight line insulator, and the regular type of catenary suspension.
![]() |
| Fig. 4. Diagrammatic Scheme of Switchboard Control, Avon Substation, Erie R. R. |
At either side of these overhead obstructions, it was necessary to provide warnings, for brake-men upon the tops of freight cars, as substitutes for the warnings of hanging pieces of rope previously used. In Fig. 9 is shown the approach to the Clarissa Street bridge, with both the old arrangement of ropes and the new scheme for electrified tracks. It will be noted that at this point only one of the two tracks is electrified and freight trains are here obliged by rule to use the unelectrified one. But to insure that the place shall be absolutely safeguarded the electrified track is fitted with warning signs of the type shown. They consist of a common type of horizontal suspended swinging wooden rod, mounted with its axis at an angle, so that it swings upas it is pushed to one side. The pantagraph trolley is fitted with a set of springs on each side, one of which strikes this warning sign a blow as it passes under and instantly throws it to one side. The blow is struck upon a heavy leather strap held taut by a coil spring of steel wire in tension, the whole contrivance being fastened to the lower half of the pantagraph trolley mechanism so that it is at the right height for striking the warning sign.
![]() |
| Fig. 5. Trolley Hanger for Catenary Line. |
The swinging rod is mounted upon the pole by means of insulators, effectually preventing any leakage to the ground, even though a car might stand still directly under the sign and make con-tact with it for an in-definite length of time.
OVERHEAD CONSTRUCTION AT SWITCHES. — Some device is necessary at turnouts or cross-overs to prevent the end of the collector bows of a train approaching converging wires, from getting hooked over one wire and catching at the trolley-frog angle. Such a device, called a deflector, is shown in detailed construction by Fig. 11 and in position by Fig. 2. This type consists of four or five bars of flat steel, 1/2 x 4 in., suspended by riveted hangers from crossbars spaced 5 ft. apart, which in turn rest on standard trolley clamps fastened to the trolley wire. The particular advantage gained by this construction is that no extra tension is needed to keep the bars from sagging and getting crooked, this type of deflector being of minimum weight and entirely self-contained. They are placed in both angles of each switch.
LINE SECTIONS. — The line is divided into seven sections: — One comprising the Rochester terminal, one the Avon yard, three sections in the main line between Rochester and Avon, and two sections south of Avon. The sections are divided by trolley section insulators as shown in Fig. 9. They are of the overlapping type, made of impregnated wood, and are of sufficient length to insure insulation at 11,000 volts. Each section insulator is carried upon two brackets, mounted on poles spaced 10 ft. apart. As the trolley and messenger must both be completely insulated on opposite sides of the break, heavy strain insulators are introduced upon which the messenger is dead ended, the two insulators being connected across the gap by a heavy steel rod. This entire combination is supported upon standard insulators mounted upon the regular brackets.
![]() |
| Fig. 6. Details of Bracket Support for Catenary Line. |
One of the breaks, that opposite the substation at Avon, is different from the above mentioned type, in that the connections are not overlapping, it being necessary to absolutely separate the two halves of the trolley line in order to utilize the separate phases of the two-phase system as mentioned above.
The only feeders necessary are those connecting the substation with the trolley on opposite sides of this section break. The principal object of cutting the trolley into additional sections is to facilitate the locating of line trouble. The conditions of electric traction upon this line are such that no feeder is necessary besides the trolley line, and consequently there is no necessity for feeding the sections separately. A "jumper" connection is therefore provided, at each section insulator, in which is placed a hook-type knife switch that can be operated in case it is desired to cut that section out . Normally, however, the switches are closed and the effect of the "jumpers" is to make the trolley wire continuous.
![]() |
| Fig. 7. Bracket Grounding Construction, Erie R. R. |
WIRES OVER RIGHT OF WAY. — Nearly all the telephone and telegraph wires which would have crossed over the 11,000 volt trolley wire have been put underground. Where the line is crossed by heavy telephone trunk lines, they have been protected by the basket type of construction, so designed as to effectually prevent a broken telephone wire from falling across the messenger or trolley wire. This basket consists primarily of four galvanized steel cables stretched between opposite ends of two cross arms, one placed above and the other below the wires of the intersecting telephone line: The four cables are joined by a basket work of light strap iron ribs placed at intervals of 3 to 4 ft. across the whole span, forming the sides and the bottom of the cradle. This construction was followed in the case of an electric light circuit at Avon.
SIGNAL SYSTEM. — The telegraph department of the Railroad Company, in connection with the signal department, constructed a private tele-phone line of two copper wires between Rochester and Avon, with instruments at all signal towers and stations in the dispatcher's office, and at the substations, and car shed, and master mechanic's office. This telephone system is run upon the trolley bracket poles, transposed every third pole, and has worked satisfactorily. A positive block signal system has been installed for dispatching trains with the headway at which they are obliged to be run upon this single track road, which must also handle steam passenger and freight traffic at the same time. The blocks extend between the regular way stations, or if such blocks are too long, switch towers are added , making the blocks average about four miles in length from one end of the line to the other. Without going into detail it may be stated that the function of the positive block system is to absolutely prevent more than one train at a time from occupying a block. The sidings are fitted with interlocking switches controlled by the block operators, in the towers, or in the way stations ,and the movement of trains is thus regulated with the greatest care. The towers are all connected by the private telephone line, while the way stations retain the usual telegraphic communication with the train dispatcher's office at Rochester. By means of the telephone communication, it is instantly possible for a train crew to get in touch with the chief dispatcher, and be properly located, but all train orders are transmitted by telegraph and written on standard forms according to uniform steam railroad practice.
TELEGRAPH SYSTEM. — As is well known, the single phase trolley system causes interference with telegraph lines, along the right of way, unless the induction is properly compensated, there is always danger of telegraphic communication being seriously affected. The chattering of the relays is particularly annoying, as it is continuous, so long as the trolley line is connected, whether or not there are any cars moving. Various means were proposed, and tried, by the Western Union Telegraph Co., for the elimination of such troubles. The most successful, thus far known, is that due to Mr. E. W. Applegate, quadruplex expert for the Western Union Telegraph Co., who has developed a very simple means for overcoming "static interference" as the telegraphers term these troubles, The Applegate "static pickup," so-called, for which a patent is pending, is shown in Fig. 12.It comprises a back-contact relay, high resistance shunts and an auxiliary battery. The current enters the 150-ohm relay attracting the armature "C." The shunt "A" consists of 350 ohms f carbon stick and on account of the self-induction of the relay magnets provides a better path for the induced currents, that may be on the line, than does the circuit through the magnets. When the line is opened by any operator the armature "C" is drawn back by a spring to the back contact "D", so that both "A" and "B" are shunted with the main circuit, relieving agitation of the armature so that it can respond to the closing of the line.
| |||
| Fig. 8. Steel Pole and Span Wire Construction, Mt. Morris Terminal, Erie R. R. |
The shunt "A" robs the relay of main line battery current very materially, so that it responds to the home key sluggishly. Consequently, the auxiliary battery "F"" is inserted as shown. When the armature "C" falls back, this battery sends current through the magnets, and assists prompt response to any operator to such an extent that the shunt "A" does not cause noticeable drag. The armature spring is adjusted to overcome any current waves that the shunts "A" and "B" may not eliminate. The aid of the 7-volt battery overcomes this adjustment, and leaves the relay very prompt and satisfactory. The resistance of the shunt "A" must be determined by the electrical distance from the ground and battery at each end of the line. The nearer to the ground, the less should be the resistance of the shunt, as in close proximity to battery and ground, the trouble is more pronounced, and the effect of the main battery upon the relay is likely to be correspondingly diminished.
LIGHTNING PROTECTION. — Only a part of the line was equipped with line lightning arresters as lightning protection for high tension single phase railway lines is not, as yet, standardized. Those arresters used are of a Westinghouse swinging-fuse type of construction. This type of lightning arrester consists of a gap, one side of which is connected directly to the trolley through a No. 4 copper wire, the other side being directly connected to the ground rod, through a fuse enclosed in a tube which, while the fuse is intact, is maintained in an inclined position like a pendulum held back from its position of rest; but when the fuse is blown, a latch is released which allows the fuse tube to swing to a vertical position which shows conspicuously from the ground, and signifies to the patrolman that the fuse should be replaced. The fuse tube can then be lifted off the suspending lugs by a pair of insulating tongs made for the purpose, and the fuse renewed and replaced in a few moments. On the other half of the line, lightning arresters were not installed. During the summer, two of the poles were struck by lightning but the metal work of the brackets and truss rods being entirely grounded, these poles were not damaged below the topmost point of attachment of the truss rods, which is generally not over 18inches from the top of the pole. In a number of instances the lightning arrester fuses have blown, but it is not known how many of them have blown simultaneously. Although the extent to which this type of arrester is fully protective, is hardly established as yet, it can be stated that at no time since regular operation started, has any injury to the car equipment resulted from lightning, though there were several severe storms during June and July.
MOTOR CARS. — The motor-cars are at present, six in number. They are 51 ft. 4 in. over bumpers; 40 ft. over corner posts; and 29 ft. 4 ins. between truck centers. They are 8 ft. 9 ins. wide over sheathing; and 13 ft. 8 5/8 ins. in height above the rail. Four of the six have two passenger compartments, the other two having a baggage compartment about 14 ft. long, and a small smoking compartment with six seats, besides the regular passenger compartment. The bottom construction of the cars comprises side sills of 5 x 8-in. yellow pine, with 6-in. steel channel and fillers, intermediate sills of 42 x 6-in. yellow pine, and center sills of 6 in. I beams, with fillers. All the cars have upper and lower truss rods and needle beams of 5-in. I beams. End sills are 8 x 6-in. oak. The flooring is double, and trap doors are fitted over the motors. Each vestibule is fitted with a double acting swinging door so arranged as to form the motorman's cab, and when not so used it is folded back to completely enclose the control apparatus and brake gear, and leaves the vestibule unobstructed for passengers.
Each car is fitted with two 50-c. p. headlights, gongs, air whistle, and with a standard train air signal used by the Erie Railroad. The cars are electrically heated. The "Standard" steel type of platform buffer is used, and the regular M. C. B. coupling, air hose connections and safety chains are provided, so that the cars can couple up to any of the standard Erie Railroad rolling equipment. There being an open space nearly 18 ins. wide, between the abutting vestibules when two motor cars are coupled together, due to the rounded platforms and projecting buffer beams, it seemed advisable to provide canvas curtains about 5 ft. high with snaps attached which enable them to be quickly stretched across the space, one on each side of the vestibule end door, so as to insure the safety of trainmen and passengers when walking from one car to another with the train in motion.
The trucks are of standard M. C. B. swing bolster type with heavy framing. The axles are 6 1/2 ins. diameter. The wheel base of each truck is 6 ft., 8 ins. Brake shoes are inside hung.
ELECTRICAL EQUIPMENT OF CARS. — The electrical equipment of the cars consists of four Westinghouse single-phase railway motors, with a nominal rating of 100 HP. each, the gear ratio being 20:63. The suspension is of the nose type. Solid gears are pressed upon the axles. The electro-pneumatic control system includes three distinct circuits; the high potential, the low potential and the control . The high potential circuit includes the pantagraph trolley, line switch and the transformer. The pantagraph trolley mechanism is operated by a pair of springs and by an air cylinder. The trolley is raised and held against the wire against its own weight by means of springs and it is lowered by the application of air pressure to pistons working in cylinders that form part of its base. When down it is automatically locked and the latch of this lock can only be withdrawn by applying air pressure to another small piston which then un-locks the pantagraph allowing the springs to raise it. This trolley mechanism is so connected with the control circuit through a line relay that any interruption in the supply of high tension current immediately causes the trolley to be lowered by applying the air to the main cylinders in the trolley base.
| |||
| Fig. 9. Approach to the Clarissa St. Bridge, Rochester, N. Y., Showing Section Break and Warning Signal. |
The line switch is equivalent to a main, high-tension, circuit breaker. It is opened and closed by air pressure, admitted by electrically operated valves. In case the supply of air is exhausted, as when the car has stood for some time unused, the line switch must first be held in mechanically by means of a handle provided for the purpose until the air pump, which can then bethrown into operation, has compressed air to about 50 lbs. pressure, which is enough to properly actuate the control system. To raise the trolley when there is no air pressure, there is provided a small automobile tire pump placed underneath one of the car seats, which is connected by a three-way cock into the trolley air-piping system, and enables the air operated trolley latch to be withdrawn and power obtained that will start the air compressor and set going the motor generator set, which is used for charging the storage battery and supplying current to the control circuit.
The transformer, of 200KW. capacity, is of the oil insulated type with three high-potential and eight low-potential taps, the latter running from300 down to 110 volts. At the latter pressure current is provided for heating, lighting and auxiliary purposes. The connection of primary and secondary transformer windings is virtually in series, as shown in Fig. 14, comprising an "auto-transformer." The high tension wiring of the car is done mainly with varnished cambric cable, drawn through loricated iron conduit. A small amount of high grade rubber cable is used, but it is thoroughly protected with varnished cambric tape wherever there is danger of a brush discharge to ground breaking down the insulation.
![]() |
| Fig. 10. Low Bridge Catenary Construction. |
In the main low potential circuit are the switch group, the preventive coils and the reverser. The switch group is a set of air operated switches controlled by magnet valves, all mounted in one frame. It is placed athwart the car as near as possible to the low tension end of the main transformer. The switches of the group are all provided with interlocks, which automatically govern the connections in such a way that each switch of the group acts only when the current in the motors has reached a predetermined value, thus making acceleration automatic. Preventive coils are used across the terminals of some of the switches of the group, to prevent excessive current flowing at the instant of closing the switch. Each switch in the group is fitted with its own blow-out coil. There are two reverser switches actuated by air pressure, one for each pair of motors. Current from the main motor circuit is led through the motor limit switch, which makes effective the functions of the interlocks, on the switch group, and renders it impossible for the successive switches to be thrown in unless the limit switch is closed.
![]() |
| Fig. 11. Arrangement of Deflectors at Trolley Frog Angles. |
The control circuit includes a master controller, in each vestibule, the train line wires and their connections to the valve magnets and interlocks, a storage battery supplying current for these wires, and a motor generator set, which is used either to charge the batteries or to actuate the control system. The master controller makes the proper connections by means of which the 15-volt storage battery actuates the valve magnets which control the action of the air operated main contactors in the switch group, and the reversers. The controller handle is normally held in a vertical central position by springs unless it is moved to one of the running points by the motorman. When released from the grasp of the hand it flies to the vertical position, cutting off the power, and causing the emergency application of the brakes by means of a brake relay valve alongside of it. There are two holes in the face of the master controller, directly under the handle, and attached to the handle by means of a chain is a plug which may be inserted into either of these holes. The master controller is not operative unless this plug is pushed all the way into the lower hole, which closes the line switch, connects the generator and battery, and puts the brake relay valve into circuit. This is the ordinary running position of the plug. In case the line switch is opened by an overload, which generally causes the trolley to be lowered, the plug is taken out of the lower hole and placed in the upper, which action immediately closes the line switch, releases the trolley and allows it to spring up against the wire. As soon as the power is thereby returned to the main circuit, the plug is taken out of the upper hole and replaced in the lower one. There is a push button upon each side of the bottom of the master controller case. That on the right hand side is used for dropping the trolley and opening the line switch. When the button on the left hand side is pressed, the switch group is stepped up to the last or high speed notch and remains in that position until the handle of the controller has been returned to the off position.
There are four distinct notches on each side of the controller, the first corresponding to the coasting position, with the power off, the others enabling such gradations of speed as may be desired. Reversal is effected by moving the controller handle to the opposite side of the center or dead point.
![]() |
| Fig. 12.Diagram of Applegate \"Static Pickup\" for Erie Telegraph Lines. |
The motor generator set is a compact machine of about 1/6 KW., the motor being of the self starting induction type, wound for 110 volts, the generator being normally of about 23 volts. It is placed under one of the seats in the car, and is covered by a box with removable lid, so that it can easily be reached for such small attention as it requires. It is mounted upon rubber bushings, and runs so quietly that its presence in the car can hardly be detected. The storage battery consists of seven cells contained in a wooden box with handles, carried in an enclosed box underneath the car. No other auxiliary lines for any purpose are connected to the control circuit in order to prevent it from being disabled by accidental grounds. In one vestibule, there is located in an asbestos lined compartment, enclosed with steel doors, a slate switchboard panel upon which are carried all the switches and fuses for the control of the battery and motor generator set, the lighting circuits and heaters, and also the main connection from the low tension side of the transformer to the auxiliaries. The control circuit consists of 12 wires which are connected from car to car by "jumper" cables injunction boxes or receptacles, at each of the four corners of the car under the end sills.
![]() |
| Fig. 13. Diagram Showing Arrangement of Electrical Apparatus and Main Circuits of Motor Cars, Erie R. R. |
The low tension wiring between the transformer and switch group, and motors, is all enclosed for protection in a boxing of "Transite" or asbestos lumber, as the inductive effects of heavy currents at low pressures rendered the use of iron conduit impossible for this part of the wiring. The electrical and air brake equipment was placed upon the car at the Buffalo shops of the Erie.
OPERATION. — The equipments above described were intended to be sufficient for operating single-car trains with one stop per mile over the entire road, at an average schedule speed of 24 mi. per hr. or to haul one trailer making stops about 2 mi. apart, at the same schedule speed. The company has furnished shelters where the public highways cross the line, there being 22 of these flag stations, besides the regular intermediate way stations at which steam trains stop, six in all, or a total of 28 stations at which electric cars may be required to stop. Practically, the electric cars stop at all the regular way stations, but at only a portion of the flag stations. A single passenger coach is frequently attached to a motor car, and on some trains baggage, milk, or postal cars are regularly hauled . When two trailers are hauled, two motor cars are required, making a four-car train, as shown in Fig. 1. The service has proved immensely. popular through-out the Genesee Valley, through which it passes. It is found that the electric trains on their 34 mi. of line can be depended on to keep their running time rather better than the steam passenger and freight trains, operating over the main line.
In addition to the facilities for repairs, afforded by the regular division shops at Avon, a brick car-inspection shed to accommodate four cars, has been built adjacent to the Avon substation. At the Rochester terminal a concrete inspection pit 60 ft. long is provided, on one of the sidetracks close to the passenger station.
![]() |
| Fig. 14. Diagram Showing Scheme of Main Circuits and Controller Switch Operations 4-Motor Equipment, Single-Phase System. |
The single-phase system was recommended for the electrification of this division by the Electric Traction Commission of the Erie Railroad, and after authorization by the company, was installed under the general direction of Mr. J. M. Graham, Vice-President in charge of the construction department of the Erie. The engineering and the construction work, were carried out, and the system brought into operative condition by Westinghouse, Church, Kerr & Co., who designed and erected the buildings and the catenary trolley construction, bonded the track, and installed the electrical apparatus in the substation and on the cars. The adjustment of the telegraph system was carried out jointly by the Western Union Telegraph Co. and the telegraph department of the railroad company.
The order was given to the engineers on June 6th, 1906, and although the intense activity in construction work all over the country at that time rendered it difficult to secure materials and labor promptly, the work was pushed so rapidly that about 7 1/2 months later, on Jan. 22, 1907, the first official trial trip was run between Avon and Rochester. The severe winter weather thereafter prevailing delayed the completion of the work until spring. During April and May, the whole equipment of substation apparatus, lines and cars was thoroughly tried out in a course of experimental operation, which also enabled the railroad employees to become familiar with the new system. On the 18th of June, commercial operation began, and has since continued permanently with marked success.
*Electric Traction Engineer, Westinghouse, Church, Kerr & Co., 10 Bridge St., New York City.













